Special Studio for spatial studies
House in Achaia II - 10 Achaia II facade
1/8
House in Achaia II - 11 Achaia II construction 2
2/8
House in Achaia II - agathi details
3/8
House in Achaia II - agathi balcony detail sm
4/8
House in Achaia II - 12 Achaia II minimarket
5/8
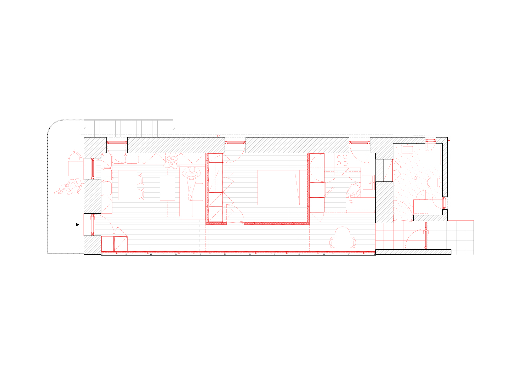
House in Achaia II - 09 Achaia II plan
6/8
House in Achaia II - 13 Achaia II enfilade
7/8

House in Achaia II, 2023, ongoing

Renovation of the upper floor of a 1930s stone half-house in an Achaian village, left unfinished after extensive repairs following the 2008 earthquake. The houses's multigenerational character is restored, but the new layout reflects the next generation's desire for more independence.
8/8
Special Studio for spatial studies

info@specialstudio.gr
+30 210 0440 8871
Ithakis 67, 11251 Athens, Greece
Instagram

Special Studio is an architectural practice searching for special solutions to spatial issues. It was founded in 2022 and engages with projects in and around Athens.

Team since 2022:
Anna Nomikou-Riiser, Marin Roche, Kassandra Saranti

Press:

Academic:

×
Projects
Pl. Attikis appartment renovation 2025 completed
Polykatoikia in Patras II new build 2025 ongoing
Living room in the Ionian interior 2025 study
Polykatoikia in Patras I new build 2025 ongoing
Winery extension in Achaia addition 2024 study
Office in Brandenburg renovation 2024 ongoing
House in Lefkada new build 2023 ongoing
House in Achaia II renovation 2023 ongoing
Aridaia city center public space 2023 competition
House in Achaia I renovation 2023 ongoing
Vertical extension in Berlin addition 2023 ongoing
Commercial building in Ilia new build 2023 study
Bed in Berlin interior 2023 study
House extension in Achaia addition 2023 study
Filis Apartment renovation 2022 study
House in Zakynthos new build 2021 study
Trainspotting research 2021
A Grey Archipelago research 2020
Atelie Patra research 2018
×